Immobiliare IL LABIRINTO
Ricerca per codice
appartamento
Faenza (RA) 175.000 Eurocodice r1768
locali 2
camere 1
bagni 1
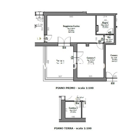
Imminente realizzazione di un NUOVO COMPLESSO tra FAENZA E CASTEL BOLOGNESE denominato "DANCING RESIDENCE", composto da 10 unità abitative di diverse tipologie e metrature. Vi proponiamo BILOCALE posto al primo piano con LOGGIA e POSTO AUTO ESCLUSIVI, chiamato "ROCK AND ROOL". L' appartamento è composto da una sala con CUCINA A VISTA in affaccio alla LOGGIA PRIVATA, a cui si affaccia anche la CAMERA MATRIMONIALE, disimpegno e BAGNO. Completano la proprietà UN POSTO AUTO e una cantina privata. Frutto di un completo recupero di una Piccola Palazzina a pochi chilometri dalla città, il complesso è situato in una posizione strategica che garantisce comodità negli spostamenti. Impianti di ultimissima generazione per garantire costi di gestione contenuti tra cui l' Impianto di Raffrescamento e Riscaldamento ad aria ed i PANNELLI FOTOVOLTAICI AUTONOMI. Possibilità di personalizzare le finiture. Nelle immagini trovate idee per l'arredo e design degli interni.
Informazioni e Planimetria in Agenzia
Cl. En. di progetto A
Richiesta € 175.000 + iva
Informazioni e Planimetria in Agenzia
Cl. En. di progetto A
Richiesta € 175.000 + iva
tipologia offerta: appartamento
Prestazione Energetica:
piano / piani: 1° / 2
superficie: 70 mq
garage:Posto auto scoperto
accessori: balcone




