Immobiliare IL LABIRINTO
Ricerca per codice
Villa a schiera
Faenza (RA), Borgo 390.000 Eurocodice r1801
camere 3
bagni 2
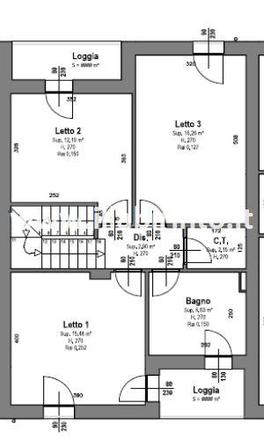
In complesso residenziale IN FASE di realizzazione proponiamo VILLETTA con CORTE E LOGGE ESCLUSIVE . La soluzione è così composta: ingresso, ampio soggiorno con CUCINA A VISTA e accesso diretto al giardino, bagno finestrato. Primo piano disimpegno notte, TRE CAMERE da letto, bagno finestrato e funzionale ripostiglio. Completano la proprietà un GARAGE ed un POSTO AUTO. Impianti di ultimissima generazione per garantire il massimo comfort e costi di gestione contenuti tra cui PANNELLI FOTOVOLTAICI AUTONOMI, un innovativo IMPIANTO VRV che consente il mantenimento della temperatura interna con un bassissimo consumo energetico. Rifiniture personalizzabili. PROGETTI disponibili in AGENZIA.
Soluzione "L"
Detrazioni di Legge legate alla Realizzazione.
Classe Energetica "A" da Progetto.
Soluzione "L"
Detrazioni di Legge legate alla Realizzazione.
Classe Energetica "A" da Progetto.
tipologia offerta: Villa a schiera
Prestazione Energetica:
piano / piani: intero edificio / 2
superficie: 170 mq
garage:Singolo
Giardino: Privato
accessori: balcone







