Immobiliare IL LABIRINTO
Ricerca per codice
appartamento
Faenza (RA), Borgo 285.000 Eurocodice r1750
locali 3
camere 2
bagni 2
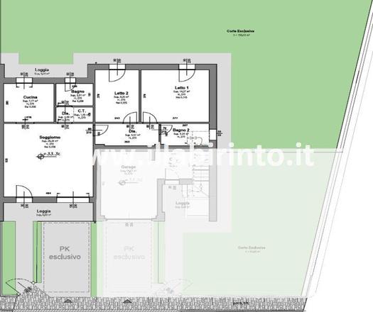
In complesso residenziale IN FASE di realizzazione, appartamento posto al piano terra con INGRESSO INDIPENDENTE e GIARDINO DI PROPRIETA' di mq. 160 così composto: AMPIO SOGGIORNO , CUCINA ABITABILE dalla quale si accede alla corte esclusiva, locale uso ripostiglio o dispensa, BAGNO FINESTRATO, disimpegno notte, camera matrimoniale, camera singola e SECONDO BAGNO FINESTRATO. Completa la proprietà un POSTO AUTO antistante l'abitazione. Impianti di ultimissima generazione per garantire il massimo confort e costi di gestione contenuti tra cui PANNELLI FOTOVOLTAICI AUTONOMI, un innovativo IMPIANTO VRV che consente il mantenimento della temperatura interna con un bassissimo consumo energetico. Rifiniture personalizzabili. PROGETTI disponibili in AGENZIA.
Soluzione "M"
Detrazioni di Legge legate alla Realizzazione
Classe Energetica "A" da Progetto.
Soluzione "M"
Detrazioni di Legge legate alla Realizzazione
Classe Energetica "A" da Progetto.
tipologia offerta: appartamento
Prestazione Energetica:
piano / piani: terra / 2
superficie: 125 mq
garage:Posto auto scoperto
Giardino: Privato






