Immobiliare IL LABIRINTO
Ricerca per codice
appartamento
Castrocaro Terme e Terra del Sole (FC), Castrocaro Terme 163.000 Eurocodice r1781
locali 3
camere 2
bagni 2
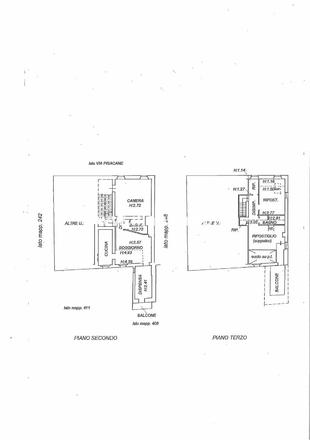
CASTROCARO TERME - ZONA CENTRALE
A due passi dalle Terme di Castrocaro, al secondo e terzo piano di palazzina completamente ristrutturata, proponiamo appartamento disposto su due livelli ALLO STATO GREZZO AVANZATO da personalizzare nelle rifiniture. Al piano secondo soggiorno, cucina separata con grazioso balconcino, studio, antibagno, bagno e camera matrimoniale. Al piano terzo ed ultimo, un ampio vano mansardato, un bagno, uno spazioso soppalco ricavato dal doppio volume e che sfocia su un meraviglioso terrazzino panoramico rivolto verso le colline. Una cantina al piano primo sottostrada completa la proprietà. No amministratore. Consegna immediata.
C.E. in fase di redazione.
Euro 163.000,00
A due passi dalle Terme di Castrocaro, al secondo e terzo piano di palazzina completamente ristrutturata, proponiamo appartamento disposto su due livelli ALLO STATO GREZZO AVANZATO da personalizzare nelle rifiniture. Al piano secondo soggiorno, cucina separata con grazioso balconcino, studio, antibagno, bagno e camera matrimoniale. Al piano terzo ed ultimo, un ampio vano mansardato, un bagno, uno spazioso soppalco ricavato dal doppio volume e che sfocia su un meraviglioso terrazzino panoramico rivolto verso le colline. Una cantina al piano primo sottostrada completa la proprietà. No amministratore. Consegna immediata.
C.E. in fase di redazione.
Euro 163.000,00
tipologia offerta: appartamento
Prestazione Energetica:
piano / piani: 2° / 3
superficie: 172 mq
accessori: balcone








